6 Beverley Street Yarraville
Under Construction Live Project $1,550,000 per Unit

6 Beverley Street
Yarraville, VIC 3013

Luxury Dual Occupancy Β· by CORE5X Building Solutions

Dual Occupancy Excellence

A Legacy of
Craftsmanship

Located in one of Melbourne's most sought-after inner-west suburbs, 6 Beverley Street presents a rare dual-occupancy development blending heritage-inspired brick facades with contemporary interior excellence.

Each dwelling is designed as a complete luxury home featuring 4 bedrooms, 3 bathrooms, and a single garage. Offering complete independence, both homes come with separate titles and entirely independent driveways, ensuring true autonomy and privacy.

Boasting generous proportions, Unit 1 offers 194mΒ² of sophisticated living space, while Unit 2 provides an equally impressive 188mΒ². The thoughtful design guarantees spacious open-plan living, premium kitchen appointments, and beautifully integrated outdoor entertaining areas.

Register Interest β†’

2

Luxury Dwellings

4 Bed

3 Bath, 1 Garage

Apr 2027

Est. Handover

VIC 3013

Yarraville

Construction Progress45%

Facade & framing underway Β· Est. handover April 2027

Everything You Need to Know

Construction Timeline

check

Phase 1 β€” Complete

Design & Permits

Architectural drawings, planning permit lodgement & council approval secured.

Phase 2 β€” In Progress

Structural & Framing

Site preparation, foundation works & structural framing underway.

Phase 3 β€” Upcoming

External Envelope

Facade, roofing, windows & external doors.

Phase 4 β€” April 2027

Handover & Settlement

Final fit-out, landscaping, and official handover.

Connectivity & Lifestyle

Prime Yarraville
Location

Click any marker to explore nearby amenities β€” schools, stations, cafΓ©s and parks.

Filter
Property
Education
Transport
Shopping & Dining
Health
Recreation
πŸ–± Drag Β· Scroll to zoom Β· Click pins to explore
6 Beverley Street
Yarraville Β· VIC 3013

Yarraville is one of Melbourne's most liveable inner-west suburbs β€” celebrated for its village character and exceptional connectivity.

Click any map marker to explore surrounding amenities in detail.

600m
To Train
7km
To CBD
300m
To Park
Quick Jump

Neighbourhood At a Glance

πŸŽ“
Education
Yarraville West Primary β€” 30 Powell St~400m
Little Lorikeets Pre-school β€” 77 Bayview Rd~350m
Norfolk St Childcare~1.2km
Footscray High β€” 298 Barkly St~2.5km
πŸš†
Transport
Yarraville Station β€” Birmingham St~600m
Bus Stop β€” Hyde St~200m
West Gate Freeway~3km
Melbourne CBD (train)~15 min
πŸ›
Shopping & Dining
Yarraville Square β€” 1 High St~500m
Anderson St Dining Precinct~800m
Sun Moth CafΓ©~700m
Highpoint Shopping~3.5km
🌿
Recreation & Health
Beaton Reserve β€” Powell St~300m
Sun Theatre β€” 8 Ballarat St~1.8km
Yarraville Community Centre~900m
Western Health β€” Footscray~2.8km

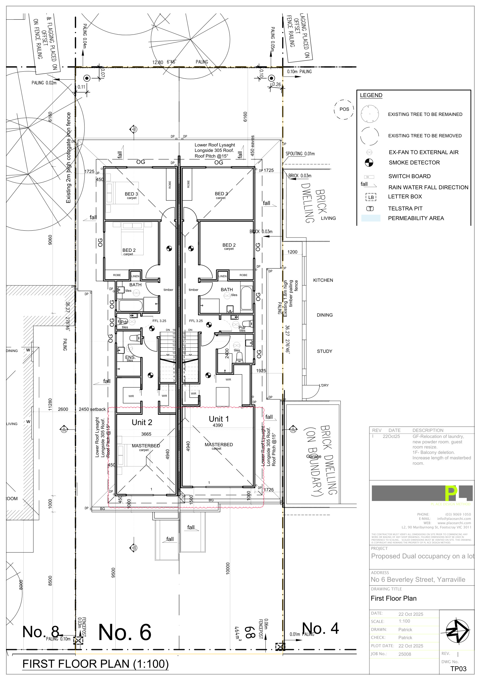
Floor Plan Overview

Dual-Occupancy
Floorplans

Two self-contained residences, each designed for comfort, light, and flow. Unit 1 features 194mΒ² of living space, while Unit 2 offers 188mΒ². Both residences feature independent driveways and separate titles.

Ground Floor

Open Plan Living & Alfresco

Ground Floor Plan
  • check_circleSpacious open-plan kitchen, dining & living
  • check_circlePrivate alfresco entertaining zone
  • check_circleSingle garage with internal access and separate driveway

First Floor

Bedrooms & Private Retreat

First Floor Plan
  • check_circleLuxurious master bedroom with ensuite & WIR
  • check_circleAdditional 3 bedrooms with central main bathroom
  • check_circleDedicated study nook/retreat area

Request Detailed Plans

Detailed measurements & specifications available to registered enquirers only.

Virtual Tour

Interactive 3D Walkthrough

Explore every key room in 360Β° from your browser. Click and drag to look around.

Premium Finishes

Curated Materials
Beyond Compare

Drawing on Yarraville's rich industrial heritage while delivering an unmistakably modern sensibility β€” the 6 Beverley Street material palette strikes a confident balance between warmth and sophistication.

🧱

Exterior Facade

Daniel Robertson Heritage Brick Β· Colorbond NightSky steel cladding Β· rendered feature elements

πŸͺ΅

Flooring

European Oak engineered timber throughout living areas Β· porcelain large-format tiles in wet areas

🍳

Kitchen

Smeg 900mm freestanding oven Β· stone benchtops Β· custom cabinetry in matte finish Β· soft-close hardware

🚿

Bathrooms

Rogerseller tapware Β· freestanding bath in ensuite Β· heated towel rails Β· floor-to-ceiling tiling

πŸͺŸ

Windows & Doors

Double-glazed aluminium window frames Β· Crimsafe security screens Β· solid-core internal joinery

⚑

Services & Sustainability

Ducted reverse-cycle air conditioning Β· 6.6kW solar Β· EV-ready garage Β· rainwater tank

Finishes & Specifications

Premium Materials Schedule

Finishes Schedule

Complete Finish Schedule

Full specification schedule available to registered enquirers. Register interest for priority access.

Enquire Now

Only Two Dwellings
Available

Register for priority access to pricing, floor plans and project updates. Opportunities at 6 Beverley Street are strictly limited. Early registration ensures priority access to all project details.

Your details are kept strictly confidential.

Prefer to chat directly?

Chat on WhatsApp